Nos prestations - Page 8

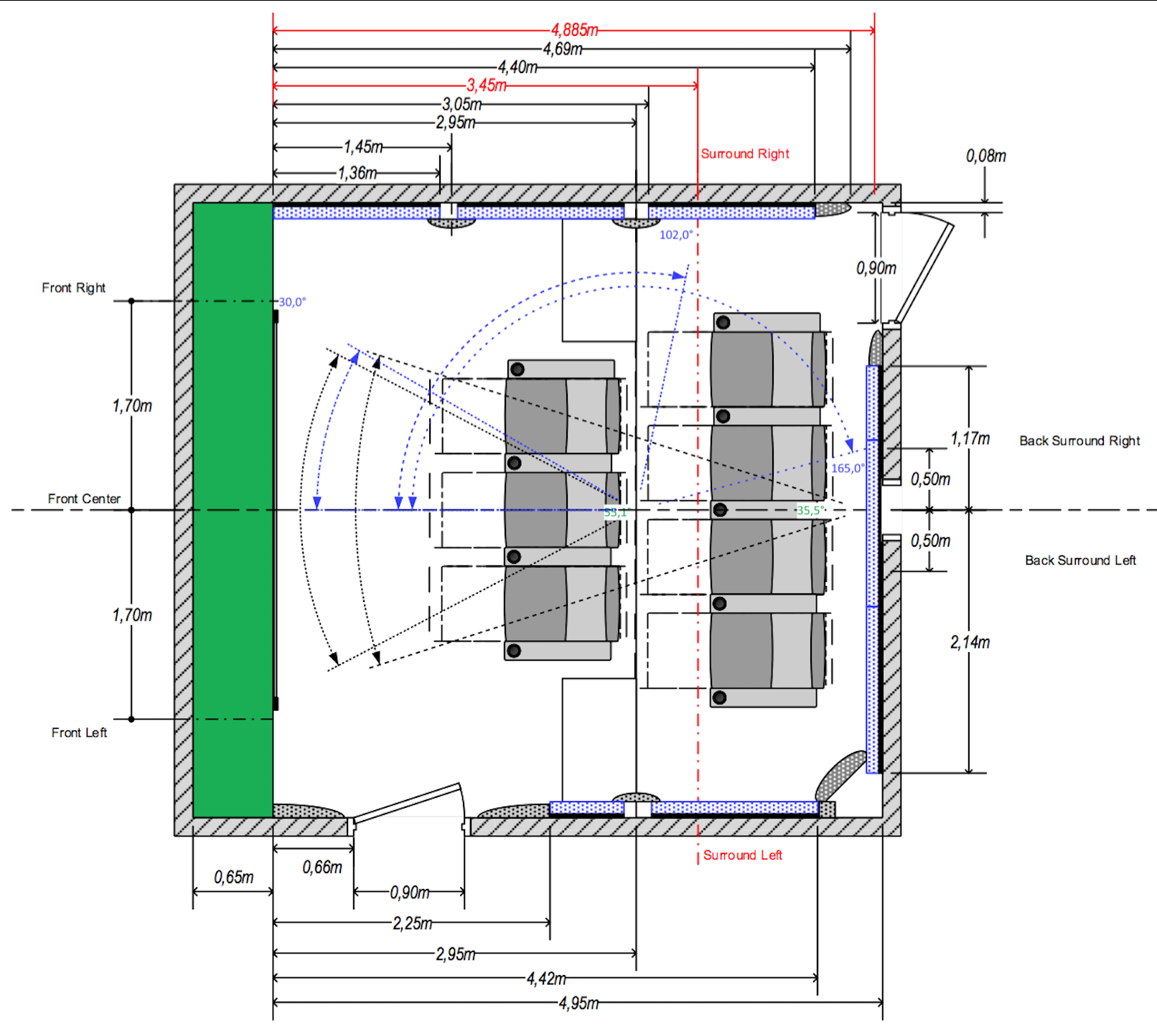
Spécialiste en Traitement acoustique pour salle de cinema privée à Saint Rémy de Provence

Spécialiste en Traitement acoustique pour salle de cinema privée à Saint Rémy de Provence

Dynamic Home Cinema a été en 2014 la première entreprise à installer la solution cinema privé.  Nous proposons ces solutions acoustiques à tous nos clients souhaitant obtenir un vrai résultat dans leur salle de cinema privé tant en...
En savoir plus
Système Home Cinema haut de gamme Meyer Sound Blue Horns

Meyer sound bluehorn en écoute

J'ai écouté le système sonore BlueHorn de Meyer-Sound la qualité est très haut de dessus des standards actuels connus tant en Hifi qu'en Home Cinema haut de gamme.  Si vous souhaitez écouter chez vous une solution hors norme au quotidien, n'hésitez à nous contacter nous pourrons vous organiser u...
En savoir plus
Serveur Innuos audio en France

Serveur audiophile Innuos

Innuos est une marque européenne de serveurs audiophiles qui offrent de très bonnes performances grâce notamment avec des sorties USB très faible bruit et des alimentations audiophiles a transformateur toroïdal.  L'interface le est quand elle des plus sympa et performantes que nous ayons rencon...
En savoir plus
TV Sony OLED ISE 2017 amsterdam

Nouveaux téléviseurs Sony OLED sans haut parleur avec la dalle qui vibre pour le son

Nouveau téléviseur Sony OLED avec la dalle en face avant qui produit le son directement depuis l'image  
En savoir plus
Ultra Cinéma : l'ultime solution pour le traitement acoustique de votre cinema privé

Ultra Cinéma : l'ultime solution pour le traitement acoustique de votre cinema privé

Le point le plus important dans une salle de cinema privé c'est l'étude acoustique et le traitement acoustique que vous allez valider pour réaliser votre salle ... Le traitement acoustique est largement plus important que le modèle d'enceinte ou d'ampli que vous achèterez (bien que c'est 2 point...
En savoir plus
Enceinte sans fil hifi à Marseille

Meridian Audio M6 : l'enceinte design haute fidélité

L'enceinte Meridian Audio M6 propose un design unique.Elles ne necessitent pas d'amplis supplémentaires car ils sont intégrés dans le pied de l'enceinte (2 par enceinte fournis)la Connectique se fait au travers d'un simple câble réseau (petit, discret et peu onéreux quelque soit sa longeur).Un pri...
En savoir plus
Salle de cinema privée montpellier

Installation d' enceintes THX JBL Synthesis dédiée pour les home cinema haut de gamme

Le meilleur des enceintes home cinéma KLIPSCH, Audio Excellence, JBL Synthesis, Artcoustic et Meridian sont disponibles chez moncineprive.com Notre sélection d'enceintes est basée sur l'experience acquise apres de nombreuses réalisations depuis 2000. Nous choisissons aussi avec vous la déc...
En savoir plus
LYNGDORF marseille

Lyngdorf TDAI-2170 (acte II) ampli avec correcteur de salle

Lyngdorf Audio et son ampli intégré Room Perfect TDAI-2170. J'ai découvert cette marque, il y a plusieurs années, par le biais de ses démonstrations hifi et home cinéma tonitruantes lors de l'ISE d'Amsterdam, par le biais de la marque Steinway Lyngdorf. Plusieurs fois la meilleure démo du salon a...
En savoir plus
Ondes Stationnaires (modes) et problème de linéarité de la réponse dans les basses fréquences ?

Ondes Stationnaires (modes) et problème de linéarité de la réponse dans les basses fréquences ?

Depuis des lustres, toutes les salles avec des dimensions inférieures à 10 mètres rencontre des problèmes d'ondes stationnaires qui occasionnent de gros accident dans la réponse dans les fréquences les plus basses de 20 à 160 Hz.Il en...
En savoir plus
installation enceinte invisible à Monaco

Stealth acoustics, Amina, sonance quelles est la meilleure marque d’Enceintes hifi murales invisibles ?

Moncineprive installe des enceintes haute fidélité murales ou plafond invisibles pour écouter votre musique sans que vos enceintes soient visibles. La technique disparait définitivement dans votre mur. Facile à installer, il ne faut pas oublier de...
En savoir plus
Lyngdorf TDAI-2170 en France

Ampli Lyngdorf audio TDAI-2170

Je commande un ampli Lyngdorf TDAI-2170   Lyngdorf TDAI-2170 voici un nom que vous devez retenir si le monde de l'audio video vous interesse. Lyngdorf est le nom du big boss de la marque mais aussi il est aussi le boss de Dali (la marque d'enceintes haute fidélité) et de la chaîne de magasin H...
En savoir plus
Convertisseur Helixir Audio HRD-DAC Marseille

Convertisseur DAC HELIXIR AUDIO CONVERTISSEUR HRDDAC

Probablement le meilleur DAC à moins de 20.000€ que nous ayons pu écouter. Le format PCM 16bits / 44.1Khz était-il une erreur ? Beaucoup lui préfère toujours la galette noire, arguant l’incapacité du Compact disc à reproduire le toucher d’un archet sur la corde d’un violon, pour ne citer que cet ...
En savoir plus
Videoprojecteur SONY VPL-VW5000ES à Bougival

Vidéoprojecteur SONY VPL-VW5000ES : le projecteur laser 4k 5000 lumens de Sony

Un nouveau firmware pour une importante mise à jour de votre VPL-VW5000ES
En savoir plus
videoprojection aix marseille

Salle de cinéma privée à Puyricard près d’Aix en Provence

Projet d'une salle de cinema privée à Aix en Provence dans un sous-sol encore non aménagé. Vue 3D, modélisation de la réponse acoustique dans le grave. Projet monté en moins d'une semaine.
En savoir plus
Enceinte cinéma Klipsch Aix en Provence

Installation d'enceintes KLIPSCH RF7 dans un grand salon à Bandol Sanary sur mer 83 Var

Une très belle paire d'enceintes KLIPSCH RF7 (un des modèles référence de la marque américaine d'enceintes à haut rendement) dans un très beau salon à Bandol - Sanary sur mer. Le client souhaitait des enceintes puissantes pour faire des...
En savoir plus
plan d'une salle de cinéma privée Lyon

Pré requis pour réussir une salle de cinéma privée

Pour réaliser votre cinéma privée, nous avons besoin d'une pièce avec des murs en béton ou en agglo brut et de quelques arrivées électriques sous gaine. Si toute fois, votre maison n'est pas encore construite ou finie, il est vivement...
En savoir plus
Comment fonctionne le Dirac de votre ampli Audiocontrol AVR

Comment fonctionne le Dirac de votre ampli Audiocontrol AVR

Comment fonctionne le Dirac de votre ampli Audiocontrol AVR7, AVR9 ou préampli M9, Arcam AVR550 ou AVR850 ou Emotiva. Improve your sound The loudspeakers and the room which they are used in are typically the weakest links of any sound system and when used in an imperfect room environment...
En savoir plus
comment bien choisir son videoprojecteur home cinema

comment bien choisir son videoprojecteur home cinema

Le choix d'un videoprojecteur est simple. Vous devez connaître quelques éléments simples comme : la distance entre vous et l'écran de projection le format d'écran souhaité (plus précisement son aspect ratio) donc 4/3 ou 16/9 ou cinemascope 2.35...
En savoir plus
Comment choisir son subwoofer?

Comment choisir son subwoofer?

Le choix d'un subwoofer (autrement appelé caisson de grave ou caisson de basse) est en fait assez simple. Un caisson de basse peut être passif (alimenté par un ampli séparé dédié au grave) ou actif (avec un ampli interne). En home cinéma,...
En savoir plus
La calibration video par Cédric Louis de

La calibration video par Cédric Louis de "HC Conseils Calibrage"

Voici comment notre partenaire Cédric Louis de "HC Conseils Calibrage" définit la calibration vidéo : L’objectif absolu et premier du calibrage d’un affichage, est de respecter la fidélité des images (la fidélité du programme...
En savoir plus
meuble Spectral Cocoon à Cassis

Meuble TV SPECTRAL sur Marseille et Aix en Provence

Les meubles SPECTRAL sont beaux, bien finis, livrés montés et les couleurs sont 100% personnalisables à la commande (selon nuancier NCS)  Vous pouvez donc choisir la forme qui vous plait au travers d'une gamme large et le commander à la couleur de votre mur (ou autres).  
En savoir plus
fauteuil home cinema pour la maison à Port Grimaud

Fauteuil Electrique Home Cinéma Salamander Designs MATTEO pour équiper une salle de cinéma privée à saint Rémy de provence

Le fauteuil de salle de cinema privé Matteo de chez Salamander Designs offre le confort d'un grand siège sur ​​une empreinte au sol faible.   C'est un avantage quand un grand nombre de sièges doivent s'intégrer dans un espace limité.   Son style contemporain, son dossier avec appui-têt...
En savoir plus
Home Cinema : Calibration, Acoustique & Optimisation

Home Cinema : Calibration, Acoustique & Optimisation

Nous choisissons nos marques comme les professionnels du cinéma. Les maîtres mots d'un bon home cinéma sont : ClartéLa clarté est l'objectif acoustique premier parce que sa perfection dépend de la réalisation réussie de tous les autres...
En savoir plus
L'utilisation de matériel de mesure de grade pro

L'utilisation de matériel de mesure de grade pro

L’installateur reste le seul garant de votre satisfaction en vous accompagnant de A à Z dans votre projet. Faire l’impasse sur l'aide d'un professionnel revient à limiter radicalement les capacités audio et vidéo de son installation. Réussir une...
En savoir plus
Qu'est ce que la Clarté C80  pour une salle de cinema privée ?

Qu'est ce que la Clarté C80 pour une salle de cinema privée ?

La clarté est l'objectif acoustique premier parce que sa perfection dépend de la réalisation réussie de tous les autres objectifs. L'intelligibilité des dialogues dans les films est d'une importance primordiale mais il faut également être en mesure...
En savoir plus
/
Prendre contact
Une question ? Un devis ?
Inscrivez-vous à la newsletter